Project studentenkamer:
Studenten studio
Door een student ben ik gevraagd om haar studio/studentenkamer in te richten. Hiervoor heb ik een plan uitgewerkt wat hieronder te vinden is. Van plan van eisen tot definitief ontwerp.




Locatie
Studenten studio
Voordat ik begon met het plan voor het interieur heb ik wat onderzoek gedaan van waar de studenten studio staat. De studenten studio bevind zich in Amsterdam. De studio staat aan de west kant van het gebouw. Daarbij staan de ramen ook aan de west kan. Hier gaat de zon onder.


Moodboard
Studenten studio
Na de locatie onderzoek heb ik een gesprek gehad met de klant, om informatie te winnen over wat de klant voor eisen/wensen heeft. Hier heb ik voor mezelf een PVE uit gemaakt, door alles op een rijtje te zetten. Met deze informatie heb ik een Moodboard gemaakt.
Zoals hier naast te zien is, is de stijl van de student rustig. Pastel kleuren waren dan ook een wens van de klant.
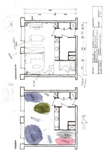
Schetsen
Studenten studio

Ik heb 3 verschillende schetsen gemaakt. Dit is de uiteindelijke indeling geworden. Het was een leuke uitdaging omdat er een piano in verwerkt moest worden en het slaap gedeelte liever apart.

Bij de deze schets merkte ik dat ik niet uitkwam met de ruimte. Om de eis piano, genoeg opberging en een aparte slaap ruimte te creëren. Ik heb daarom nog een derde schets gemaakt om toch nog een andere indeling te proberen.

Over deze indeling was ik ook wel tevreden, het lijkt op de eerste schets alleen is de eetkamer iets anders. Uiteindelijk heb ik de deze en de eerste schets aan de klant laten zien, waaruit de eerste schets het meest aansprak.
Product voorstel
Studenten studio

De opdracht was om de meubels etc. van de Ikea te halen. Laag segment. Hier heb ik dan ook een voorstel voor gemaakt.

Bij de Ikea heb ik zo goed mogelijk gezocht naar producten die bij de stijl, wensen en eisen van de klant passen

Met deze uitgekozen producten heb ik een collage gemaakt. Hierdoor krijg je een beeld hoe het eruit komt te zien.

Net als bij de slaapkamer heb ik ook bij de woonkamer een producten lijst gemaakt. Ik heb gekozen voor roze pastel kleuren, aangezien de klant dit een mooie kleur vind en dit graag terug wilde zien in het ontwerp

De rest van de meubels heb ik rustig gehouden. Voornamelijk wit of andere natuurlijke kleuren. De vloer heb ik ook voor een neutrale kleur gekozen.

Ook hier heb ik een collage gemaakt. Van de kant van de bank en het zicht vanaf de bank naar de tv. Door de achterkant van de kasten een kleur te geven creëer je een knus zit hoekje en verspil je geen ruimte.

Dan de eetkamer. De wens van de klant was om een plekje te hebben voor de piano en een studeer plek. Ik heb ervoor gekozen om niet een aparte plek voor het studeren te maken, maar een uitschuifbare tafel.

Ik heb deze keuze gemaakt, door de beperkte ruimte. De piano neemt namelijk veel ruimte in en zo kan er evengoed gestudeerd worden.

Hierbij weer de collage. Ik heb er ook voor gekozen om twee stoelen te kiezen. De roze zal in een paar aan de tafel staan. De witte daar in tegen zijn klapstoeltjes en zou je er dus aan kunnen zetten bij visite.
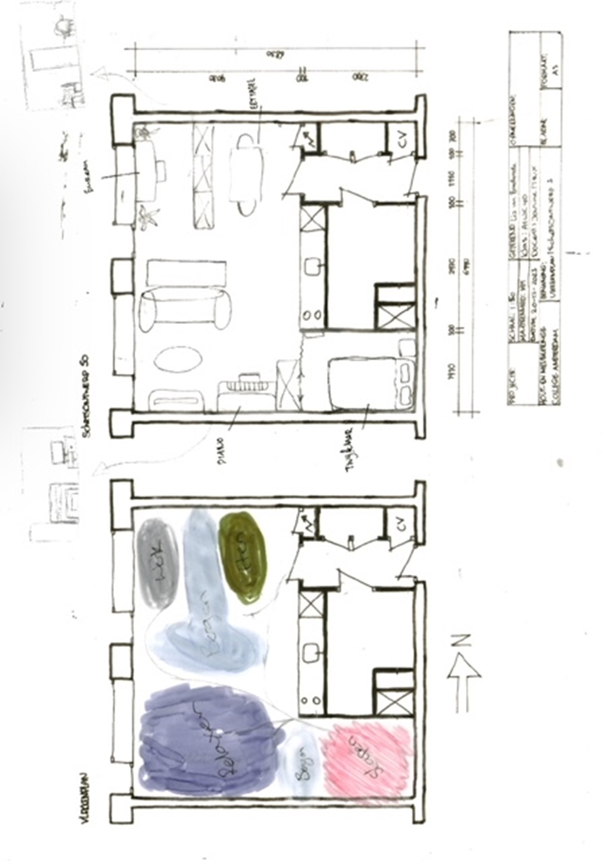
Materiaal, kleur en prijs
Studenten studio

De materialen en kleuren die ik heb gebruikt heb ik in een materiaal en kleur overzicht gezet. Zo kun je precies terug zijn welke materialen en kleur er zijn gebruikt

Ik heb op een plattegrond doormiddel van kleur aangegeven waar welke kleur komt. Zo is het ook duidelijk voor de schilders waar welke kleur moet komen. Daarnaast heb ik de uiteindelijk eindprijs. Het budget was €5.000, maar ik ben er iets wat onder gebleven.

Hier heb ik nog een flatlay gemaakt om de materialen en kleuren die ik wilde gaan gebruiken duidelijk te laten zien.
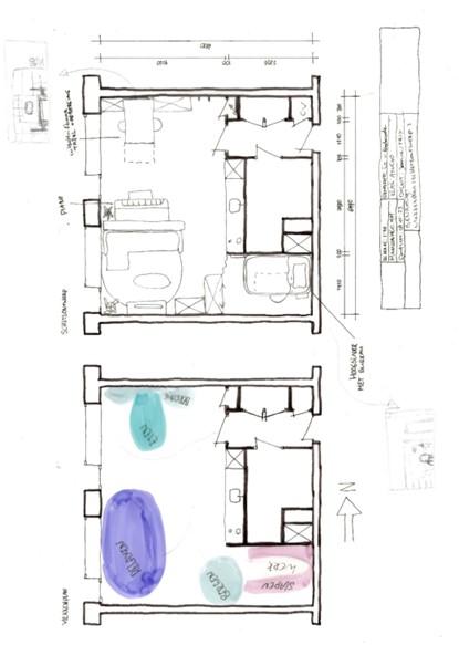
Eind product
Studenten studio
Als laatst heb ik het voorlopig ontwerp gemaakt. De uiteindelijke schets heb ik opgewerkt met kleur en 3d schetsjes, om een goed beeld te krijgen.
Bij dit project heb ik, met al de bovenstaande informatie, een klantendossier gemaakt. Hierdoor maak je het voor de klant overzichtelijk en kan je snel al het informatie terug vinden.


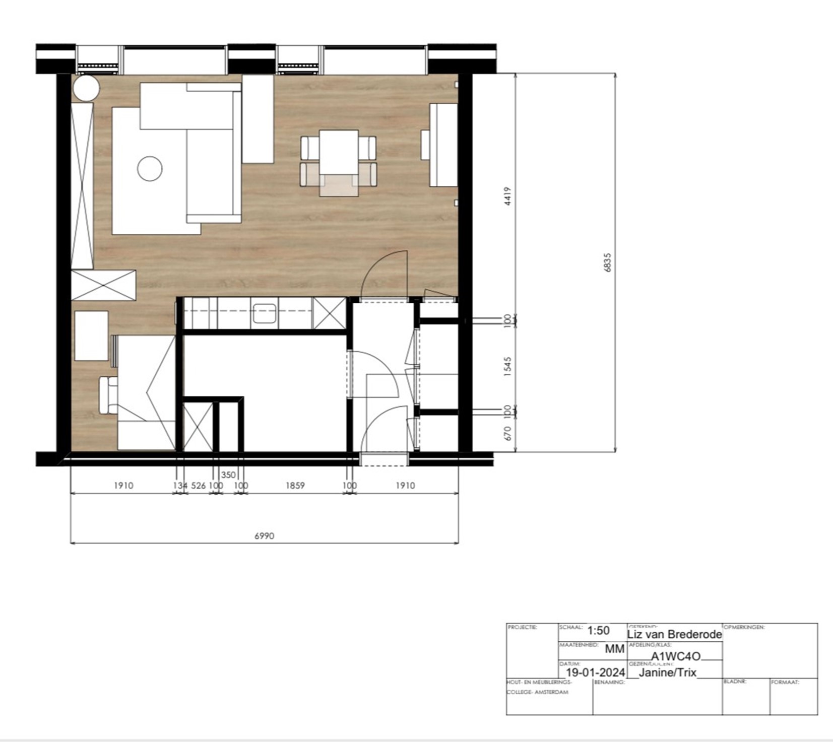
Vectorworks
Studenten studio
Bij het eindproduct hoort ook nog deze plattegrond uitgewerkt op het teken programma vectorworks. Alles precies op schaal.